Our Process

Thoughtful architecture is never rushed. It unfolds through study, collaboration, and careful execution. It is shaped both on paper and in the field. It begins with listening, evolves though study and refinement, and is realized through craftmanship.

Our process is deliberate, collaborative, and responsive to its surroundings.

01. Understanding the land

Every project begins with a walk of the land. We study light, orientation, topography, prevailing winds, and surrounding context before design begins. Views are framed, approach is considered, and natural features are respected.

02. Defining the program

From there, we work closely with our clients to understand how they live. Daily routines, gathering spaces, privacy, and circulation inform the program and shape the plan.

We ask direct questions. How does your morning begin? Where does the family gather? Where is quiet found?

The architecture grows from these patterns of living rather than from a predetermined aesthetic.

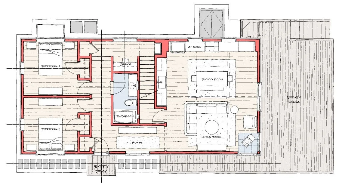
03. Schematic design

Initial ideas are explored through hand sketches, precedent studies, and simple massing models. We test proportion, scale, and site placement.

Multiple approaches may be considered. Through conversation and iteration, a clear architectural direction emerges.

04. Design development

The concept is refined through detailed floor plans, sections, elevations, and three dimensional studies. Materials are evaluated in natural light to ensure a cohesive and lasting palette.

At this stage, we coordinate closely with structural and mechanical engineers to integrate performance with form. Energy strategy, envelope detailing, and building systems are thoughtfully aligned with the design intent.

05. Construction documents

The design is translated into a comprehensive set of drawings and specifications. Every dimension, assembly, and detail is carefully resolved to guide construction.

Clarity in documentation reduces uncertainty in the field and protects both design and the clients investment.

06. Contractor collaboration

We assist in contractor selection, and review proposals to ensure alignment in scope and quality. Early collaboration establishes shared expectations and fosters a productive working relationship.

Architecture is a team effort. Trust is essential.

07. Construction administration

Throughout construction, we remain actively involved. Regular site visits ensure that design intent is upheld and that every detail is executed with care.

We review shop drawings, respond to contractor questions, and evaluate material samples in the field. Adjustments are made thoughtfully, always with the long term integrity of the project in mind.

The work is shaped not only on paper, but in collaboration with skilled builders.

08. Completion and stewardship

As the home nears completion, we walk the project together, confirming that each element reflects the original vision. Final detailing, landscape integration, and material transitions are carefully reviewed.

A well designed home should age gracefully. Our goal is to create architecture that sustains both technically and aesthetically.

Ready to start?

Lets begin the process, we’d love to hear from you.